泉南市新家 中古一戸建て
- 価格
-
1,700万円
返済例月々-円
- 面積
-
建物面積:
115.92㎡
土地面積:
174.61(52.82坪)㎡ - 間取り
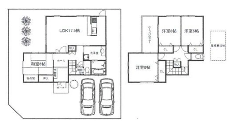
- 4LDK
泉南市新家 中古一戸建ての物件写真
- スタッフのおすすめPOINT!
-
閑静な住宅街にある4LDKの角地住宅。土地約52.81坪、LDK17.5帖のゆとりある間取りです。現在賃貸中で、年間予定賃料収入は約117.6万円。安定した収益を見込める物件です。
物件担当の
芝辻康平です
泉南市新家 中古一戸建てのアクセスマップ
泉南市新家 中古一戸建ての物件概要
| 物件番号 | 4853 |
|---|---|
| 住所 | 大阪府泉南市新家 |
| 最寄駅 | 阪和線 新家駅 バス分 (バス停より徒歩3分) |
| 間取 | 4LDK |
| 駐車場 | 有 |
| 土地面積 | 174.61㎡ 公簿 |
| 土地権利 | 所有権 |
| 地目 | 宅地 |
| 都市計画 | 市街化調整区域 |
| 建物面積 | 115.92㎡ |
| 築年月日 | 2004年05月 |
| 構造 | 木造 2階建 |
| 現況 | 賃貸中 |
| 引渡 | 相談 |
| 取引態様 | 仲介 |
| 物件登録日/価格 | 2025/11/07 1,700万円 |
| 価格更新日/価格 | 2026/05/06 1,700万円 |
| 情報更新日 | 2026/05/06 |
| 次回更新予定日 | 2026/06/05 |
泉南市新家 中古一戸建てのローンシミュレーション
住宅ローンもおまかせください!
現在の店頭基準金利は2.475%当社優遇金利での
住宅ローンだと
借入額1700万円(税込)
金利%
年ローン
- 毎月返済額
- 円
頭金0円でボーナス払いなしの場合の金額です。
また、お客様のご条件により金利の優遇幅が変動する場合があります。
返済例は全額ローン(ボーナス返済0円)、元利金等支払、借入期間35年、変動金利(金利優遇適用後)の0.625%にて計算(現在2026年05月適用)
住宅ローンシミュレーターを用いて算出したものであり、実際の借り入れ事例を示すものではなく、また、実際の支払い金額と若干計算結果が異なる場合があります。金利優遇にはいくつかの条件がございます。条件等により優遇が適用されない場合もございます。上記金利は、優遇金利を確約するものではありません。また、お借り入れの際は、銀行事務手数料等別途諸費用が発生する場合がございます。詳細につきましては上記金融機関公式サイト、もしくは弊社住宅ローンアドバイザーにご相談ください。




