泉南市樽井7丁目 中古一戸建て
- 価格
-
1,800万円
返済例月々-円
- 面積
-
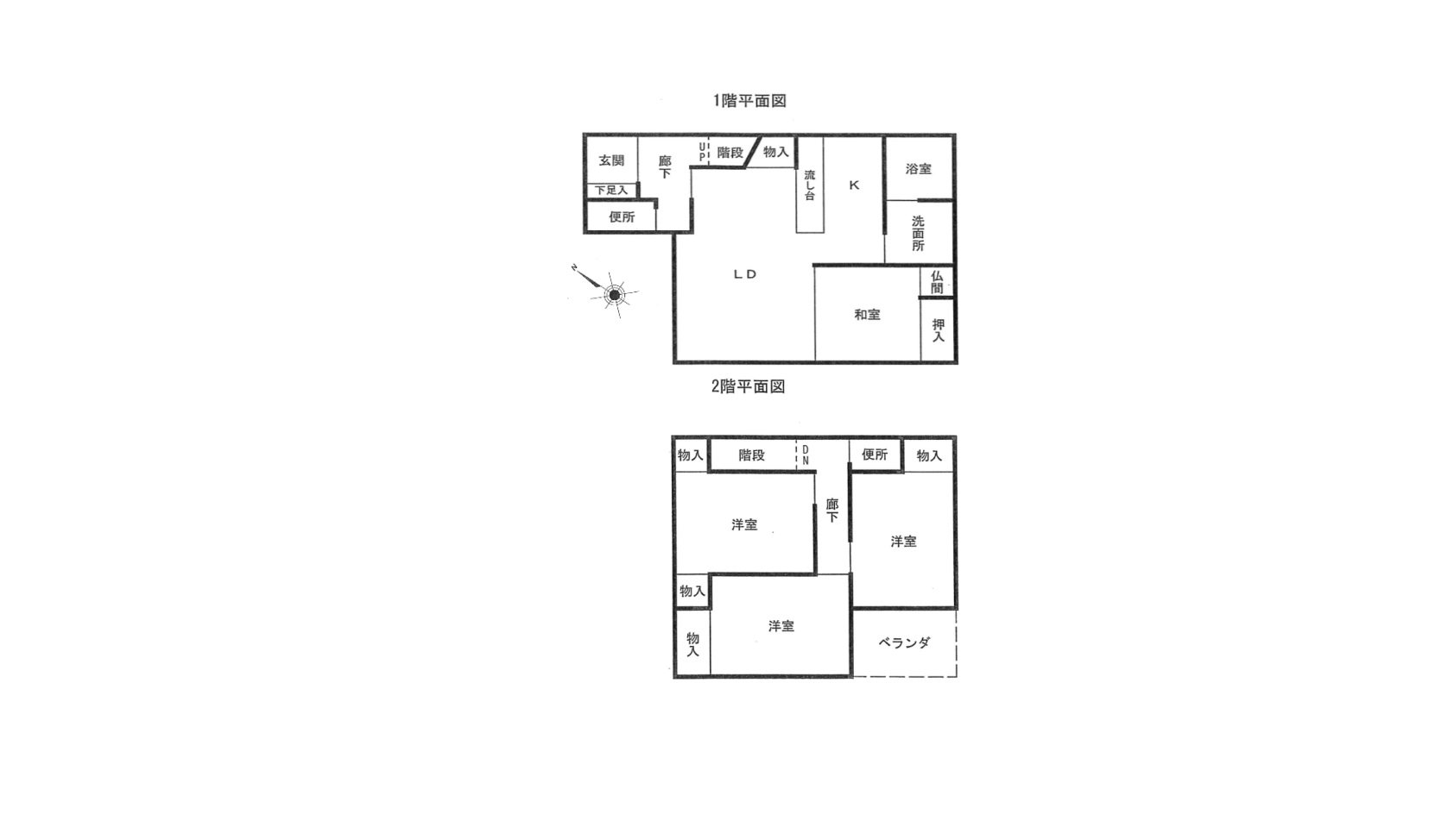
建物面積:
91.93㎡
土地面積:
121.83(36.85坪)㎡ - 間取り
- 4LDK
泉南市樽井7丁目 中古一戸建ての物件写真
- スタッフのおすすめPOINT!
-
新居を探すとき、家具をどうするか——それも大きな悩みのひとつです。この家は、その悩みをあらかじめ解決してくれています。ベッドもソファーも机もテレビも冷蔵庫も、もうここにある。2012年築の4LDKは、食器洗い機・追い焚き・浴室乾燥・温水洗浄便座と、毎日の暮らしを少し豊かにしてくれる設備が揃っています。南海本線「樽井」駅まで徒歩7分。公園が徒歩4分圏内に複数あり、子どもたちが外へ出たくなる環境も整っています。スーパー・コンビニ・郵便局も近く、生活の動線がきれいにまとまった立地です。カーポートもあって、車を持つ家族にも嬉しい。新しい章を、この家から始めてみませんか。
物件担当の
芝辻康平です
泉南市樽井7丁目 中古一戸建てのアクセスマップ
泉南市樽井7丁目 中古一戸建ての物件概要
| 物件番号 | 5146 |
|---|---|
| 住所 | 大阪府泉南市樽井7丁目 |
| 最寄駅 | 南海本線 樽井駅 |
| 小学校区 | 樽井小学校 |
| 中学校区 | 泉南中学校 |
| 間取 | 4LDK |
| 駐車場 | 有 |
| 土地面積 | 121.83㎡ 公簿 |
| 土地権利 | 所有権 |
| 地目 | 宅地 |
| 都市計画 | 市街化区域 |
| 用途地域 | 第一種住居地域 |
| 建物面積 | 91.93㎡ |
| 築年月日 | 2012年08月 |
| 構造 | 木造 2階建 |
| 建ぺい率 | 60% |
| 容積率 | 200% |
| 現況 | 空家 |
| 引渡 | 即時 |
| 取引態様 | 仲介 |
| 物件登録日/価格 | 2025/12/23 1,800万円 |
| 価格更新日/価格 | 2026/04/19 1,800万円 |
| 情報更新日 | 2026/04/19 |
| 次回更新予定日 | 2026/05/19 |
泉南市樽井7丁目 中古一戸建てのローンシミュレーション
住宅ローンもおまかせください!
現在の店頭基準金利は2.475%当社優遇金利での
住宅ローンだと
借入額1800万円(税込)
金利%
年ローン
- 毎月返済額
- 円
頭金0円でボーナス払いなしの場合の金額です。
また、お客様のご条件により金利の優遇幅が変動する場合があります。
返済例は全額ローン(ボーナス返済0円)、元利金等支払、借入期間35年、変動金利(金利優遇適用後)の0.625%にて計算(現在2026年05月適用)
住宅ローンシミュレーターを用いて算出したものであり、実際の借り入れ事例を示すものではなく、また、実際の支払い金額と若干計算結果が異なる場合があります。金利優遇にはいくつかの条件がございます。条件等により優遇が適用されない場合もございます。上記金利は、優遇金利を確約するものではありません。また、お借り入れの際は、銀行事務手数料等別途諸費用が発生する場合がございます。詳細につきましては上記金融機関公式サイト、もしくは弊社住宅ローンアドバイザーにご相談ください。




