阪南市光陽台4丁目 中古一戸建て
- 価格
-
1,180万円
返済例月々-円
- 面積
-
建物面積:
176.79㎡
土地面積:
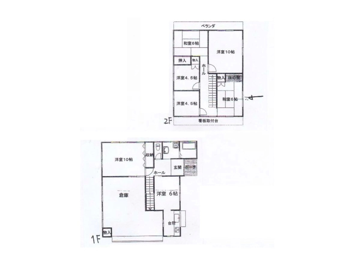
323.57(97.88坪)㎡ - 間取り
- 8K
阪南市光陽台4丁目 中古一戸建ての物件写真
- スタッフのおすすめPOINT!
-
子どもが庭を走り回れる。趣味の道具を倉庫に並べられる。そんな「広い家ならでは」の豊かさが、この物件にはあります。土地約97坪という敷地は、建物を建てた後もたっぷりの余白が残ります。延床約53坪の2階建ては、家族それぞれの居場所をきちんと持てる間取り。令和7年8月に一部リフォームを終えた室内は、空き家ながら次の暮らしを迎える準備が整っています。倉庫付き、軽自動車2台分の車庫付きと、実用面での充実度も高い一棟です。都市ガス・公共下水完備で、ライフラインの心配もありません。空き家のため即時引渡し可能。のびやかな毎日が待っている光陽台の一邸、ぜひ現地でその広さを体感してください。
物件担当の
芝辻康平です
阪南市光陽台4丁目 中古一戸建てのアクセスマップ
阪南市光陽台4丁目 中古一戸建ての物件概要
| 物件番号 | 5153 |
|---|---|
| 住所 | 大阪府阪南市光陽台4丁目 |
| 最寄駅 | 南海本線 鳥取ノ荘駅 徒歩21分 |
| 小学校区 | 東鳥取小学校 |
| 中学校区 | 鳥取東中学校 |
| 間取 | 8K |
| 駐車場 | 有 |
| 土地面積 | 323.57㎡ |
| 土地権利 | 所有権 |
| 地目 | 宅地 |
| 都市計画 | 市街化区域 |
| 用途地域 | 第一種低層住居専用地域 |
| 建物面積 | 176.79㎡ |
| 築年月日 | 1982年10月 |
| 構造 | 木造 2階建 |
| 建ぺい率 | 50% |
| 容積率 | 100% |
| 現況 | 空家 |
| 引渡 | 即時 |
| 取引態様 | 仲介 |
| 物件登録日/価格 | 2026/03/21 1,180万円 |
| 価格更新日/価格 | 2026/04/21 1,180万円 |
| 情報更新日 | 2026/04/21 |
| 次回更新予定日 | 2026/05/21 |
阪南市光陽台4丁目 中古一戸建てのローンシミュレーション
住宅ローンもおまかせください!
現在の店頭基準金利は2.475%当社優遇金利での
住宅ローンだと
借入額1180万円(税込)
金利%
年ローン
- 毎月返済額
- 円
頭金0円でボーナス払いなしの場合の金額です。
また、お客様のご条件により金利の優遇幅が変動する場合があります。
返済例は全額ローン(ボーナス返済0円)、元利金等支払、借入期間35年、変動金利(金利優遇適用後)の0.625%にて計算(現在2026年05月適用)
住宅ローンシミュレーターを用いて算出したものであり、実際の借り入れ事例を示すものではなく、また、実際の支払い金額と若干計算結果が異なる場合があります。金利優遇にはいくつかの条件がございます。条件等により優遇が適用されない場合もございます。上記金利は、優遇金利を確約するものではありません。また、お借り入れの際は、銀行事務手数料等別途諸費用が発生する場合がございます。詳細につきましては上記金融機関公式サイト、もしくは弊社住宅ローンアドバイザーにご相談ください。




